



agence d’architecture parisienne spécialisée en patrimoine
Adresse
Rue Ambroise Paré, Paris, 75010
Programme
Mission de programmation « Nouveau Lariboisière 2020 »
Année
Livré en 2015
Surface
–
Coût
300 M€ HT
MOA
A.P.H.P.
MOE
Athégram (mandataire), PM architectes




Classé partiellement MH (2019), Inscrit partiellement MH (1975)
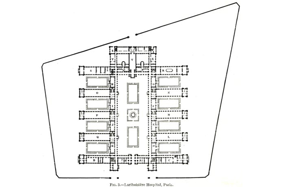
Le nouvel hôpital Lariboisière s’inscrit dans la continuité du premier hôpital de la rive nord de Paris, construit en 1854. À l’origine innovant dans sa conception, ce patrimoine, qui a diffusé le modèle du peigne, est aujourd’hui valorisé dans le schéma directeur étudié dans le cadre de notre mission de programmation.
Notre travail engage une réflexion sur le caractère patrimonial du site et sur son respect dans la poursuite du projet hospitalier. La demande de valorisation patrimoniale s’inscrit dans la préservation du bâtiment historique comme socle de toute création. L’étude de programmation répond ainsi à la demande d’un hôpital « connecté » par la création d’un bâtiment neuf, implanté en juxtaposition de l’édifice d’origine. La question de la réutilisation des espaces anciens interroge la conservation comme préalable à la création de bâtiments éminemment techniques, tels que ceux requis pour un hôpital. Véritable machine à guérir, le nouvel hôpital ne peut en effet s’implanter dans des bâtiments anciens inadaptés et non modulables. La mission de programmation architecturale et patrimoniale pose ainsi les bases d’un futur dialogue entre l’ancien et le nouvel hôpital. Ce dialogue se construira dans le respect d’une lecture claire du patrimoine d’origine protégé. La répétition des pignons et leur indépendance morphologique sont garanties par une construction en retrait et en totale séparation du bâtiment neuf.
Complexe dans son fonctionnement et dans la gestion des flux, l’hôpital nécessite une organisation à la fois « à plat » et « verticale », qui ne peut se satisfaire d’un fonctionnement réparti dans deux bâtiments totalement distincts. Dans le cas présent, le principe de séparation entre l’hospitalisation et les consultations permet de limiter les liaisons entre le bâtiment neuf et le bâtiment ancien. L’hôpital d’origine conserve les fonctions de consultation ainsi que l’accès historique. Le bâtiment neuf s’oriente quant à lui vers le nord, avec la création d’une nouvelle entrée qui inverse l’organisation du site et renforce son adresse aux quartiers nord, notamment par l’ouverture d’un jardin sur le boulevard de la Chapelle.