



agence d’architecture parisienne spécialisée en patrimoine
Adresse
Rue Alfred Labrière, Argenteuil 95100
Programme
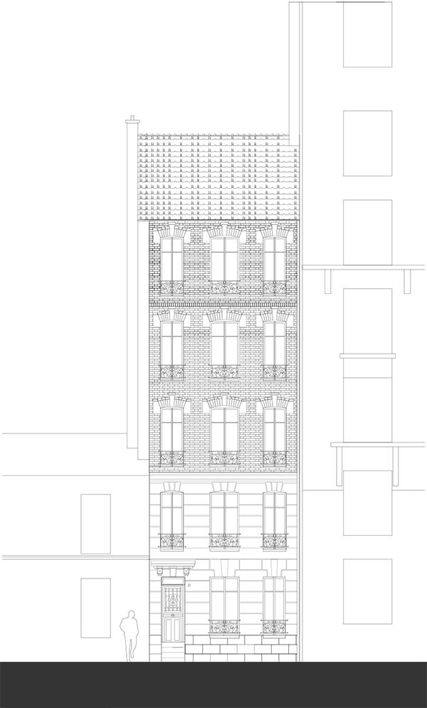
Ravalement de façade sur rue et cour avec réfection d’une couverture
Année
Livré en 2010
Surface
285 m²
Coût
350 000€ HT
MOA
Foncia DELAL
MOE
PM architectes




Le projet, inscrit dans le cadre d’un programme de mise en valeur du centre ancien d’Argenteuil piloté par la mairie, avec l’appui d’un cabinet d’urbanisme, a conduit les propriétaires à réaliser le ravalement des façades sur cour de l’immeuble de logements.
Cette opération a permis de répondre pleinement aux obligations fixées, notamment en reprenant intégralement les ouvrages de descentes d’eaux pluviales et d’assainissement de l’immeuble afin de mettre en place un système séparatif.