





agence d’architecture parisienne spécialisée en patrimoine
Adresse
av. des Fonds-Maréchaux, Vaucresson, 92420
Programme
Réaménagement intérieur d’une maison individuelle
Année
Livré en 2010
Surface
Non communiqué
Coût
Non communiqué
MOA
Privée
MOE
PM architectes






Édifiée par l’architecte Pol Abraham entre 1929 et 1930, la villa Thérèse accueille aujourd’hui une famille nombreuse et nécessite des aménagements intérieurs adaptés à ses besoins.
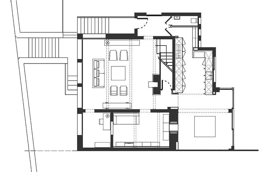
Lors d’une précédente extension, les espaces intérieurs ont perdu en lisibilité et l’organisation existante ne mettait plus en valeur la qualité du projet initial. L’agence propose une réorganisation complète du rez-de-chaussée, en simplifiant les volumes et en redéfinissant les relations entre les différentes zones de vie.
Le projet s’attache à restaurer la simplicité formelle et la lisibilité d’origine. Une part importante de l’intervention concerne la conception et la définition d’ouvrages sur mesure, permettant de concilier fonctionnalité contemporaine et respect du style architectural initial.